Call us on 0116 318 4182
Economy Cycle Shelter | Eco Bike Shelter
Economy Cycle Shelter | Eco Bike Shelter
-
Estimated delivery date 05/03/2026 - 06/03/2026
Shipping and VAT calculated at checkout.
Economy Cycle Shelter | Eco Bike Shelter
Our aesthetically pleasing range of Trolley, Smoking and the Economy Cycle Shelter | Eco are manufactured from high grade components and provides superior protection from all weather conditions.
Great Quality Slimline Cycle Shelter, Ideal for a number of applications from Schools and Local Authorities to Commercial and Residential Developments. Cycle Capacity Bike Shelter Complete with Sheffield toast rack.
Includes Galvanised Finish Cycle Stands & Free Delivery! When purchased for above ground fixing we will also supply the ground anchors for securing on to a suitable concrete base.
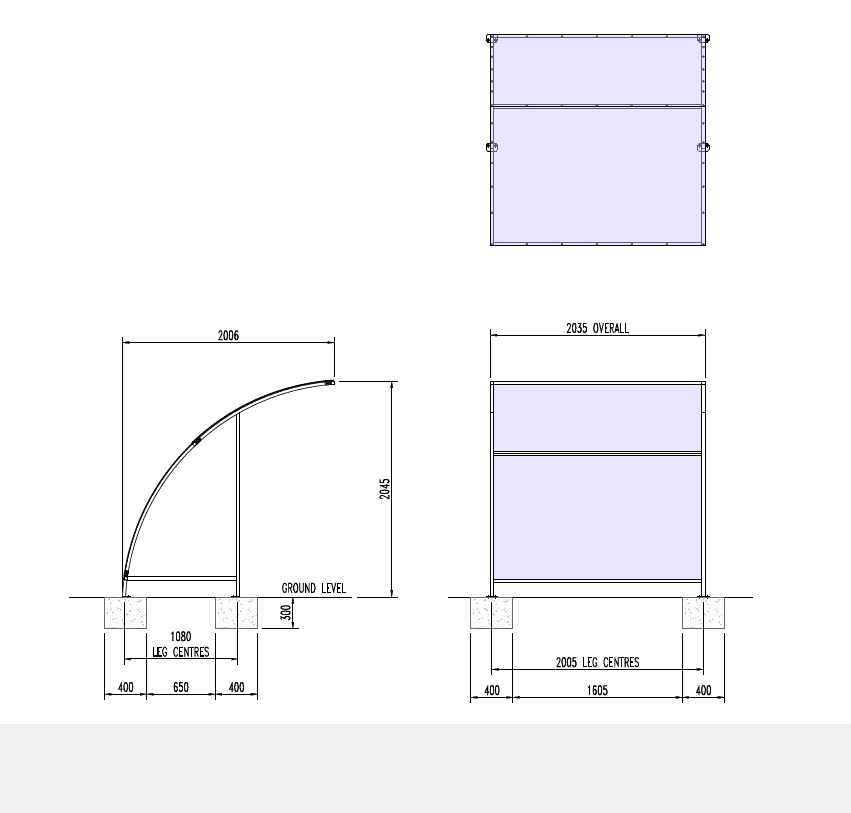
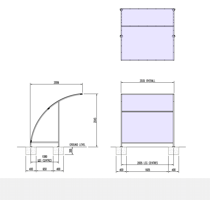
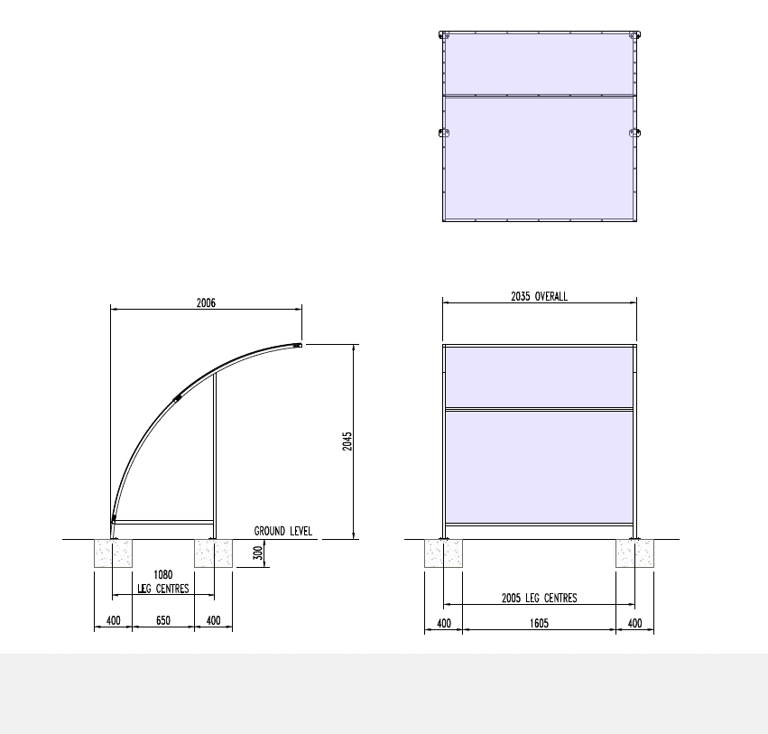
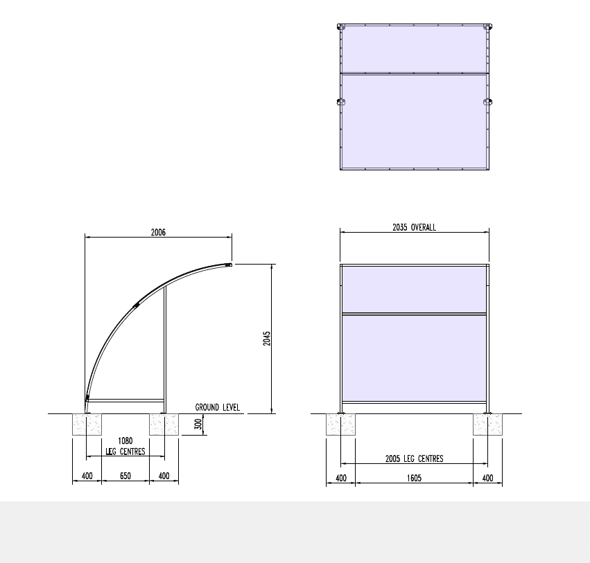
This is our budget 'Economy' 4 bike storage cycle shelter. This unit has a choice of finish, either galvanised only finish or powder coat only finish colour Traffic Blue RAL 5017 or Moss Green RAL 6005, the unit is supplied with 6mm twin wall roof/back sheeting, 3mm high quality Pet-G UV2 end panel sheeting is offered at a cost option. Manufactured for bolt down fixing on to a suitable concrete base with cost option for extended legs if the unit placement area is tarmac or paving etc.
The main features of this shelter are:-
- Framework produced from steel strongbox section to EN 10219:2006
- Expert CPA Assured Galvanising , (where applicable) - our Expert CPA Assured Galvanising is applied to inside and outside surfaces as standard, carries a 10 year guarantee, and is a corrosion resistant zinc coating to BSEN1461
- Powder Coating (where applicable) material to BS3900, applied in house to ensure our stringent quality control standards are maintained.
Additional standard benefits of our range include:-
- Choice of above ground or below ground fixing
- Free delivery to England, Wales, and Southern Scotland. (
- Your choice of finish, either Expert CPA Assured Galvanising only, or Powder Coat finish only, free of charge.
- Our worry free guarantee - any manufacturing or material defect will be rectified free of charge.
Please note:- As our policy is one of continuous improvement, there may be minor differences between the product you receive and the images on the website. The overall appearance of the product will not be affected. The standard or the quality of the product supplied will be equal or superior to the product image on the website.
Perfect for Business's - Pubs - Clubs in fact just about anywhere
Estimated Delivery Window
We aim to deliver within the delivery window mentioned on the product page, though this may vary slightly depending on the product, stock levels, and order size.
Please Note
Lead times are provided as estimates only. Orders placed today may be subject to change depending on material availability, courier capacity, and staffing levels.
Deliveries requested for a specific date or time may incur an additional fee; however, these cannot be guaranteed. Any re-delivery required due to the customer not being present, site refusal, or similar reasons will also result in an additional delivery charge.
Store Fittings Direct reserves the right to delay delivery, without liability for any loss or financial penalty, due to any direct or indirect factors beyond our control.

Pay By Card
The easiest way to complete your purchase is by paying with a debit or credit card during the checkout process, providing your card is authorised, you order will be processed Immediately. All major debit and credit cards are accepted including American Express
Finance
If you are looking to finance your order, we have teamed up with Iwoca to bring you some of the most flexible finance available today. If approved, you could enjoy up to £30,000 of credit with repayments from 30 days up to 12 months!
Please see our finance section for more information, or simply apply at checkout, you'll be redirected to Iwoca for approval, if approved, your checkout will automatically complete.
BACS / Bank Transfer
This can be the simplest way to make a larger capital purchase without using a third party.
If this is the preferred method of payment, please select Bank Transfer at checkout.
Bank transfers should be made within 24 hours of placing your order, using your order number as a reference in the transfer.
If you require longer than 24 hours, please contact our team and we will be happy to assist.